Auftrag
Ersatzneubau einer Villa am rechten Zürichseeufer.
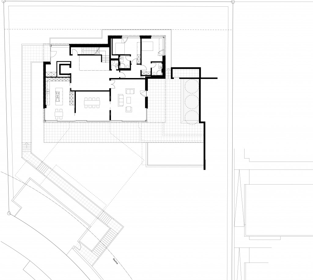
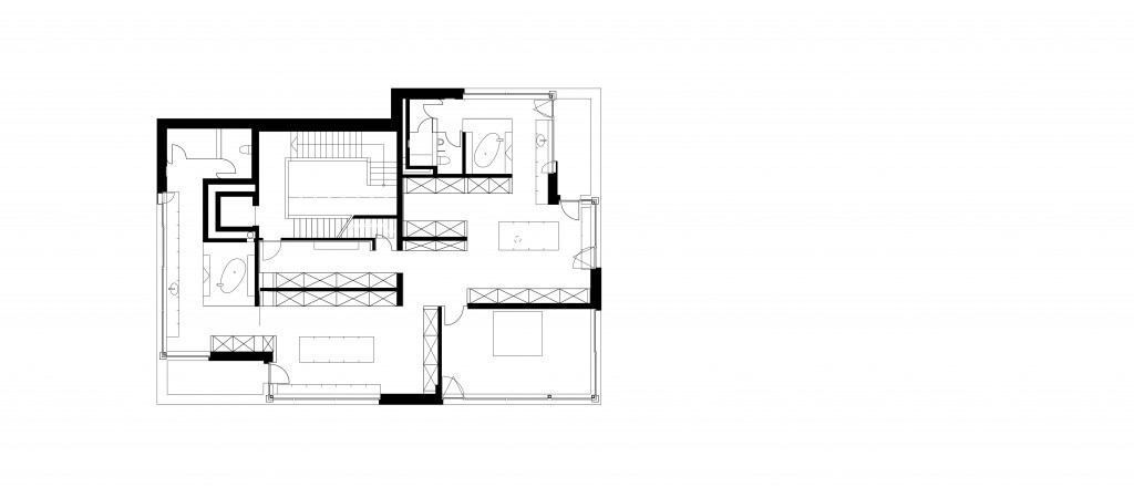
Raumprogramm
Repräsentative Wohnräume im Erdgeschoss mit Gästezimmern, im Obergeschoss weitläufiger Schlafbereich mit Ankleiden und Nasszellen.
Privater Wohnbereich im Dachgeschoss beinhaltet einen Wohnraum, ein Büro und einen Fitnessraum, sowie eine kleine Küche und Dusche/WC.
Grosszügige Schrankräume im ersten sowie eine grosse Einstellhalle im zweiten Untergeschoss.
Ausführung
Sommer 2009 – Herbst 2010